PROJETOS
NANO DOCES Projeto Arquitetura, Executivo e Obra
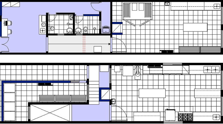
Arquitetura, Executivo e Obrao que foi feito
- Cozinha Industrial
- Área de Preparo
- Área de Embalagem
- Escritório e Banheiros
Sobre o projeto
NANO DOCES Santa Cecília, SP Projeto Arquitetura, Executivo e ObraO Projeto Cozinha Industrial da Fábrica de Doces foi elaborado pensando em sua funcionalidade e sustentabilidade. Foi dividido em três grandes blocos: administrativo, área de preparo, área de embalagem. Na área administrativa e social da empresa, abriga as salas de escritórios e banheiros. Na área de preparo localiza-se a despensa e monta carga para transporte das sobremesas para a área de embalagem e câmara fria. Finalmente as sobremesas na área de embalagem são carregadas em furgões refrigerados para a sua distribuição em supermercados e restaurantes.



